Cải tạo căn hộ Masteri & tối ưu không gian sống
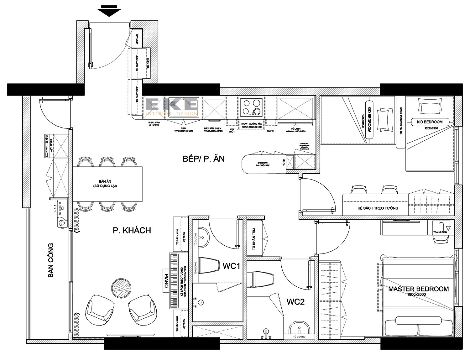
Căn hộ Masteri Thảo Điền có diện tích 73m2, trong đó, diện tích thông thủy khoảng 68m2, với 2 phòng ngủ. Với nhu cầu nâng cao chất lượng sống, đồng thời gia đình có thêm thành viên. Do đó, việc tổ chức và sắp xếp lại không gian sống một cách khoa học là cực kỳ quan trọng.
Phong cách hiện đại – Đề cao chức năng & tiện ích
Giải pháp cải tạo nội thất Masteri Thảo Điền lần này ưu tiên sự tối giản về đường nét, và trung tính về màu sắc. Sử dụng các gam màu be, trắng sữa, xám nhạt kết hợp với vật liệu gỗ sáng màu. Sự kết hợp này mang lại cảm giác nhẹ nhàng, thư thái và mở rộng không gian đáng kể.
Ưu & nhược điểm không gian căn hộ trước khi cải tạo
Một ưu điểm của không gian hiện tại là các phòng ngủ và phòng khách đều có cửa sổ lớn. Do đó tận hưởng được ánh sáng tự nhiên, thông thoáng. Tuy nhiên, nhược điểm là cách tổ chức không gian hiện hữu rất bất cập. Điển hình là logia khá nhỏ, khó thao tác và xoay sở. Hành lang phòng ngủ tối. Khu vực giải trí phòng khách không tiện nghi. Khu vực bếp chiếm diện tích lớn và khá cồng kềnh.
Căn hộ Masteri sau khi cải tạo
Với một gia đình nhỏ với 4 thành viên, thì không gian sẽ ưu tiên chức năng hơn hình thức. Thay vì sa và các chi tiết trang trí, chủ đầu tư đã rất sáng suốt khi dành chi phí đó để đầu tư vào các thiết bị tiện ích.
Hệ tủ bếp được tổ chức dọc theo chiều dài và chiều cao tường, để khai thác hết chức năng lưu trữ. Khu vực phòng khách ưu tiên dành không gian vui chơi cho trẻ. Một phần của phòng khách dành cho học tập, giải trí và thư viện.
Hạng mục cải tạo
Đối với hạng mục cải tạo, chi phí luôn cao hơn khi nhận bàn giao cơ bản và thực hiện ngay từ đầu. Các hạng mục đó có thể liệt kê sơ bộ như: tháo dở, vận chuyển xuống tòa nhà. Sơn sửa tường & chống thấm, mối. Thay thể & vệ sinh các hệ thống M&E, chi phí lắp đặt đồ gỗ, v.v…
Chi phí cải tạo
Cần biết chính xác những gì bạn muốn cải tạo. Đừng bắt đầu dự án khi mà bạn không đủ khả năng. Xác định chính xác những gì bạn cần, và luôn dự phòng thêm ít nhất 20% các khoản có thể phát sinh. Ngân sách dự phòng này để đảm bảo chắc chắn rằng, bạn vẫn có thể hoàn thành dự án của mình dù bất kỳ chuyện gì xảy ra.
Đối với dự án cải tạo nội thất căn hộ Masteri Thảo Điền mà chúng tôi thực hiện, có thể ước tính khối & chi phí như sau:
- Sàn gỗ: 12.000.000 vnd.
- Sơn nước toàn nhà: 24.000.000 vnd.
- Điện nước M&E: 11.000.000 vnd
- Đập phá tháo dỡ, vận chuyển: 9.000.000 vnd.
- Đồ gỗ nội thất: 250.000.000 vnd.
Ngoài ra, các thiết bị điện, điện tử, phụ kiện bếp, v.v…có thể tiêu tốn thêm một khoản chi phí. Tùy vào nhu cầu của bạn, mà bạn có thể mua sắm cho phù hợp. Chúng tôi có thể tư vấn cho bạn công đoạn này.
Liên hệ & Dịch vụ
EKE với 18 năm kinh nghiệm, chuyên nội thất nhà ở dân dụng, chúng tôi hiểu và thành thạo các giải pháp thiết kế và xử lý các vấn đề thi công. Mang đến cho khách hàng sự yên tâm.
Quý khách có nhu cầu thiết kế thi công nội thất căn hộ Masteri Thảo Điền, vui lòng liên hệ với EKE theo hotline 0908.930.903 để được tư vấn giá & quy trình thực hiện, nhằm đảm bảo không phát sinh chi phí.
















